Phòng sạch sản xuất trà thảo mộc là giải pháp quan trọng để đảm bảo vệ sinh an toàn thực phẩm, giữ trọn dược tính tự nhiên và nâng cao chất lượng sản phẩm. Việc ứng dụng vật liệu hiện đại như Panel EPS trong thi công không chỉ giúp cách nhiệt, chống nước, chống tĩnh điện mà còn đáp ứng các tiêu chuẩn GMP, HACCP trong ngành thực phẩm và dược liệu. Đây là nền tảng để doanh nghiệp khẳng định uy tín, mở rộng thị trường trong và ngoài nước.
Quý khách hàng tại Hà Nội có nhu cầu đặt mua Panel EPS cách nhiệt, thi công vách, trần, cửa, cho phòng sạch, phân chia ngăn phòng trong nhà máy, nhà xưởng. Vui lòng liên hệ để SĐT/ Zalo: 0932.268.932 hoặc 093.555.6268 để được tư vấn, báo giá, hỗ trợ bóc tách kỹ thuật và thuê đơn vị thi công trọn gói.
Nội dung chính
- 1 Thông tin công trình
- 2 Hiện trạng mặt bằng nhà máy sản xuất trà thảo mộc tại Hà Nội
- 3 Bố cục phân chia & Danh sách các phòng chức năng trong nhà máy sản xuất trà thảo mộc
- 4 Thi công ngăn phòng, lắp đặt phòng sạch sản xuất trà thảo mộc bằng Panel EPS
- 5 Hình ảnh thi công phòng sạch sản xuất trà thảo mộc bằng Panel EPS
- 6 Đơn vị cung cấp và thi công phòng sạch, nhà máy tại Hà Nội
Thông tin công trình
- Công trình: THI CÔNG PHÒNG SẠCH SẢN XUẤT TRÀ THẢO MỘC TRONG NHÀ MÁY
- Hạng mục thi công: Vách, trần, cửa (cửa mở + cửa lùa)
- Vật liệu thi công: Panel EPS
- Khối lượng: 700m2
- Thời gian hoàn thiện: 12 ngày
- Địa điểm thi công: Thường Tín, Hà Nội
- Đơn vị cung cấp và thi công: Mathome Việt Nam

Xem thêm một số công trình tương tự tại Mathome
Công trình: Thi Công Phòng Chế Biến, Đóng Gói Và Bảo Quản Cà Phê (Biên Hòa)
Công trình: Thi Công Vách Trần Nhà Máy Thực Phẩm Tại Thủ Đức (2976m2)
Công trình: Thi Công Nhà Máy Sản Xuất Bánh Mứt Tại Thủ Đức (1.350m2)
Hiện trạng mặt bằng nhà máy sản xuất trà thảo mộc tại Hà Nội
Đánh giá về mặt bằng, diện tích, kết cấu của nhà máy sau khi tiến hành khảo sát, đo đạc thực tế:
- Nhà máy có kết cấu khung thép, mái tôn kẽm, tường bao cũng bằng tôn sóng. Đảm bảo độ bền vững để lắp đặt phòng sạch cũng như các phòng chức năng trong nhà máy sản xuất trà thảo mộc.
- Nền bê tông, tạo bề mặt phẳng, dễ vệ sinh, hạn chế phát sinh bụi trong quá trình sản xuất.
- Chiều cao trần khá lớn, có hệ thống đèn chiếu sáng công nghiệp treo trên hệ xà kèo. Tạo không gian thoáng, cung cấp đủ ánh sáng cho toàn bộ nhà máy.
- Diện tích sàn nhà xưởng 420m2, mặt bằng rộng rãi, thông thoáng. Thuận lợi cho việc tập kết vật tư và phân chia các khu vực chức năng trong nhà máy sản xuất.
Về tổng thể, mặt bằng khá thuận lợi cho việc lắp đặt tấm Panel. Sau khi khảo sát và trao đổi với chủ đầu tư, Mathome đã tiến hành bóc tách bản vẽ kỹ thuật, lên khối lượng, sản xuất tấm và có phương án thi công cụ thể.
Xem thêm: Thi Công Phòng Sạch Sản Xuất Tinh Dầu Hạnh Nhân Bằng 700m2 Panel PIR (Đồng Nai)


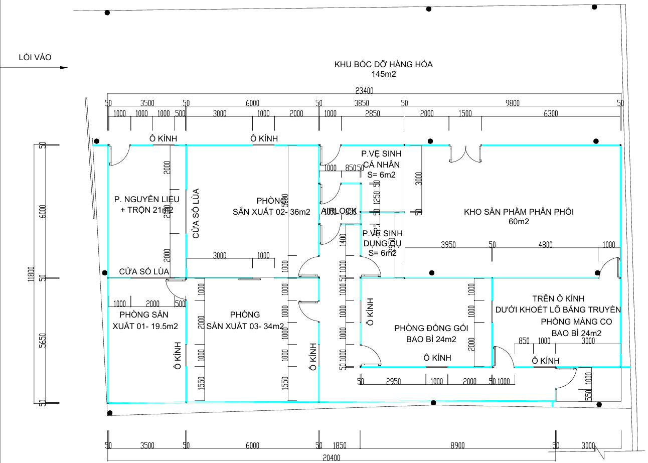
Bố cục phân chia & Danh sách các phòng chức năng trong nhà máy sản xuất trà thảo mộc
Nhà xưởng sản xuất trà thảo mộc tại Hà Nội có sơ đồ phân chia bố cục như sau:
Khu bốc dỡ hàng hóa: Nằm ngay lối đi vào nhà máy, rộng rãi, thuận tiện cho xe chở hàng ra vào, giao nhận nguyên liệu và thành phẩm.
Khu vực sản xuất:
- Phòng nguyên liệu + trộn:
- Phòng sản xuất 1:
- Phòng sản xuất 2:
- Phòng sản xuất 3:
Khu vực đóng gói – bao bì:
- Phòng đóng gói bao bì:
- Phòng màng co bao bì:
Kho lưu trữ – sản phẩm phân phối:
Hạ tầng phụ trợ:
- Airlock (buồng đệm kiểm soát khí sạch)
- Phòng vệ sinh, thay đồ cho nhân viên nhà máy
- Phòng vệ sinh dụng cụ
- Hành lang kỹ thuật kết nối các phòng
Toàn bộ khu vực sản xuất, khu bao bì và khu lưu trữ trong nhà máy sản xuất trà thảo mộc đều được thi công dưới dạng phòng sạch.
Xem thêm: Thi Công Phòng Sản Xuất, Kho Đông Bảo Quản Kem (700m2)


Thi công ngăn phòng, lắp đặt phòng sạch sản xuất trà thảo mộc bằng Panel EPS
Tại sao sản xuất trà thảo mộc cần phòng sạch?
Phòng sạch là hạng mục quen thuộc thường có mặt bên trong các nhà máy thực phẩm, dược phẩm, mỹ phẩm và điện tử. Đây là những căn phòng khép kín, được trang bị hệ thống máy móc hiện đại nhằm kiểm soát hàm lượng hạt bụi trong không khí, nhiệt độ, độ ẩm và áp suất.
- Đảm bảo vệ sinh an toàn thực phẩm, ngăn chặn bụi bẩn, vi sinh, nấm mốc và các tác nhân có hại xâm nhập vào làm hư hỏng sản phẩm.
- Duy trì hương vị, dược tính tự nhiên của thảo mộc.
- Đáp ứng tiêu chuẩn sản xuất của một nhà máy sản xuất dược liệu, thực phẩm.
- Đảm bảo chất lượng đồng bộ, nâng cao hiệu quả sản xuất.
- Nâng cao uy tín của doanh nghiệp, tăng khả năng xuất khẩu.
Vậy, hệ thống phòng sạch và các phòng chức năng khác bên trong nhà máy sản xuất trà thảo mộc được thi công từ vật liệu gì?
Xem thêm: Xu Hướng Thi Công Phòng Sạch Bằng Panel: Y Tế, Thực Phẩm, Mỹ Phẩm, Điện Tử

Ứng dụng Panel EPS trong thi công phòng sạch sản xuất trà thảo mộc
Panel EPS là dòng vật liệu chuyên thi công vách, trần, cửa cho các công trình nói chung và công trình phòng sạch nói riêng. Vật liệu này đáp ứng đầy đủ các tiêu chuẩn cần có của một phòng sạch như sau:
- Khả năng cách nhiệt: Hệ số dẫn nhiệt của lõi xốp EPS là 0.035 Kcal/m.h.oC, vừa cách nhiệt từ bên ngoài vào bên trong, vừa chống thoát nhiệt từ trong phòng sạch ra bên ngoài, duy trì nhiệt độ ổn định cho từng khu vực sản xuất, đóng gói, kho bảo quản.
- Đảm bảo độ sạch: Bề mặt tấm phẳng, không có vết xước, khó bám bụi, dễ vệ sinh.
- Chống nước: Tấm không hút ẩm, không thấm nước, đảm bảo độ ẩm ổn định, ngăn chặn vi khuẩn, nấm mốc.
- Chống tĩnh điện: Bề mặt tôn mạ hợp kim nhôm kẽm sơn tĩnh điện, đảm bảo môi trường sản xuất an toàn.
Bên cạnh đó, vật liệu còn có những ưu điểm trong thi công và kinh tế như sau:
- Đơn giá thấp, tiết kiệm chi phí vật tư và nhân công.
- Lắp đặt nhanh chóng trong 12 ngày, đẩy nhanh tiết độ hoạt động của nhà máy.
- Linh động trong thiết kế, sửa chữa, thay đổi bố cục hay di dời, lắp đặt lại.
- Thiết kế hiện đại, chuyên nghiệp.
Xem thêm: Báo Giá Vật Tư Và Thi Công Panel EPS Tại Hà Nội (2025)

Vật liệu Panel EPS: Cấu tạo, màu sắc, thông số kỹ thuật
Panel EPS tương đối đa dạng về kích thước và mẫu mã. Tuy nhiên, dòng Panel EPS được ứng dụng để thi công vách, trần, cửa cho phòng sạch, nhà máy sản xuất trà thảo mộc có đặc điểm như sau:
Cấu tạo:
- Hai lớp mặt ngoài: Tôn mạ hợp kim nhôm kẽm, sơn tĩnh điện.
- Lớp lõi cách nhiệt: Xốp EPS
Mẫu mã:
- Panel dạng tấm dài
- Tôn hai mặt cán phẳng
- Màu trắng
Thông số kỹ thuật:
- Độ dày tấm: 50 (mm)
- Độ dày tôn: 0.35 (mm)
- Tỷ trọng xốp: 10 (kg/m3)
- Khổ rộng: 1.15 / 1.17 (m)
- Chiều dài: 2.20, 3.00 (m)
Xem thêm: Báo Giá & Hướng Dẫn 7 Bước Thi Công Tấm Trần Panel
Xem thêm: Báo Giá & Hướng Dẫn Thi Công Vách Panel Trong Nhà, Ngoài Trời
Xem thêm: Báo Giá Bộ Cửa Panel, Cửa Mở, Cửa Trượt (Cấp Toàn Quốc)

Thiết kế mặt bằng bố trí Panel EPS thi công vách, trần
Thiết kế vách Panel: Vách lắp dọc theo khung phụ kiện. Một số vị trí lắp đặt thêm ô kính 1000x2000mm.
Thiết kế trần Panel: Thi công dưới dạng trần chìm. Trên bề mặt trần lắp quạt thông gió 350×350 và hệ thống đèn led 600×600 giữa tấm nhôm trần.
Thiết kế cửa Panel:
- Cửa lùa 1 cánh có ô kính, kích thước 1000x2200mm
- Cửa mở 1 cánh có ô kính, kích thước 1000x2200mm
- Cửa mở 2 cánh có ô kính, kích thước 1500x2200mm
Toàn bộ phụ kiện thi công vách, trần, cửa Panel đều sử dụng phụ kiện mạ anode chuyên cho phòng sạch.
Dưới đây là bản vẽ mặt bằng bố trí vách, trần Panel thi công phòng sạch sản xuất trà thảo mộc trong nhà máy tại Thanh Trì, Hà Nội.


Hình ảnh thi công phòng sạch sản xuất trà thảo mộc bằng Panel EPS
Phòng sạch sản xuất, phòng đóng gói, phòng bảo quản, kho nguyên liệu, khu phụ trợ trong nhà máy sản xuất trà thảo mộc tại Hà Nội đều được thi công bằng Panel EPS trong 12 ngày – 420m2 sàn – 700m2 vật liệu Panel. Dưới đây là một số hình ảnh thực tế từ công trình, Quý khách hàng hãy cùng theo dõi!















Đơn vị cung cấp và thi công phòng sạch, nhà máy tại Hà Nội
MATHOME nhận sản xuất, cung cấp, thi công và hướng dẫn thi công vách, trần, cửa bằng Panel EPS, lắp đặt phòng sạch sản xuất trà thảo mộc nói riêng và phòng sạch cho các lĩnh vực khác nói chung tại Hà Nội và các tỉnh thành sau:
Miền Bắc: Bắc Ninh. Hà Nam. Hà Nội. Hải Dương. Hải Phòng. Hưng Yên. Nam Định. Ninh Bình. Thái Bình. Vĩnh Phúc. Hà Giang. Cao Bằng. Bắc Kạn. Lạng Sơn. Tuyên Quang. Thái Nguyên. Phú Thọ. Bắc Giang. Quảng Ninh. Lào Cai. Yên Bái. Điện Biên. Hoà Bình. Lai Châu. Sơn La.
Miền Trung: Thanh Hóa. Nghệ An. Hà Tĩnh. Quảng Bình. Quảng Trị. Thừa Thiên Huế.
Miền Nam: TP HCM. Bình Phước. Bình Dương. Đồng Nai. Tây Ninh. Bà Rịa – Vũng Tàu. Long An. Đồng Tháp. Tiền Giang. An Giang. Bến Tre. Vĩnh Long. Trà Vinh. Hậu Giang. Kiên Giang. Sóc Trăng. Bạc Liêu. Cà Mau. Cần Thơ. Ninh Thuận. Bình Thuận.
THÔNG TIN LIÊN HỆ & ĐỊA CHỈ
CÔNG TY CỔ PHẦN CÁCH NHIỆT MATHOME VIỆT NAM
Hotline 1: 0932268932
Hotline 2: 0935556268
Email: mathomegroup@gmail.com
Website 1: https://mathome.com.vn
Website 2: http://tongkhoxaydung.com.vn
Fanpage: https://www.facebook.com/mathomevietnam
VPGD MIỀN BẮC: Số 10/12, Đường Khuất Duy Tiến, Phường Thanh Xuân Bắc, Quận Thanh Xuân, TP. Hà Nội.
VPGD MIỀN NAM: Căn Số 7, Đường 270, KDC Nam Hòa, Phường Phước Long A, TP. Thủ Đức, TP. Hồ Chí Minh
VPGD MIỀN TÂY: Tầng 3, Tòa STS Tower, Số 11B Đại Lộ Hoà Bình, Phường Tân An, Quận Ninh Kiều, TP. Cần Thơ
Chi nhánh và nhà máy sản xuất tại: Hà Nội. Bắc Ninh. Phú Thọ. Sơn La. Thái Bình. Quảng Ninh. Thanh Hóa. Nghệ An. Đà Nẵng. Bình Dương. Long An. Vĩnh Long. Phú Quốc…
